Функциональная и удобная металлическая кухня ASTOV BBQ / АСТОВ БАРБЕКЮ для любителей стильного внешнего вида и готовить на угольном гриле.
Наш гриль собственного производства позволяет с удобством приготовить различные блюда от простейших сосисок до сложной рваной текстуры различного мяса длительного томления.
Универсальное решение для тех, кто ценит стильный комфорт на открытом воздухе — для них прекрасно подойдут наши модульные уличные кухни. Прошедшая горячую оцинковку сталь, используемая при производстве корпусов и фасадов, даёт гарантию коррозионной стойкости, существенно продляя срок использования. Элегантности внешнему виду добавляет окраска RAL / РАЛ (цветовой стандарт)***9005. В основной набор элементов, кроме мойки, включён комплект ящиков для столовых приборов и кухонной утвари, тумбы с полками, а также угольный гриль, вытяжка, и легкосъёмный цоколь. При желании можно расширить этот, а также любой из наших наборов, добавив необходимые вам модули, ведь это — модульные барбекю комплексы. Так же возможно интегрирование любых кухонных приборов и устройств.
Параметры:
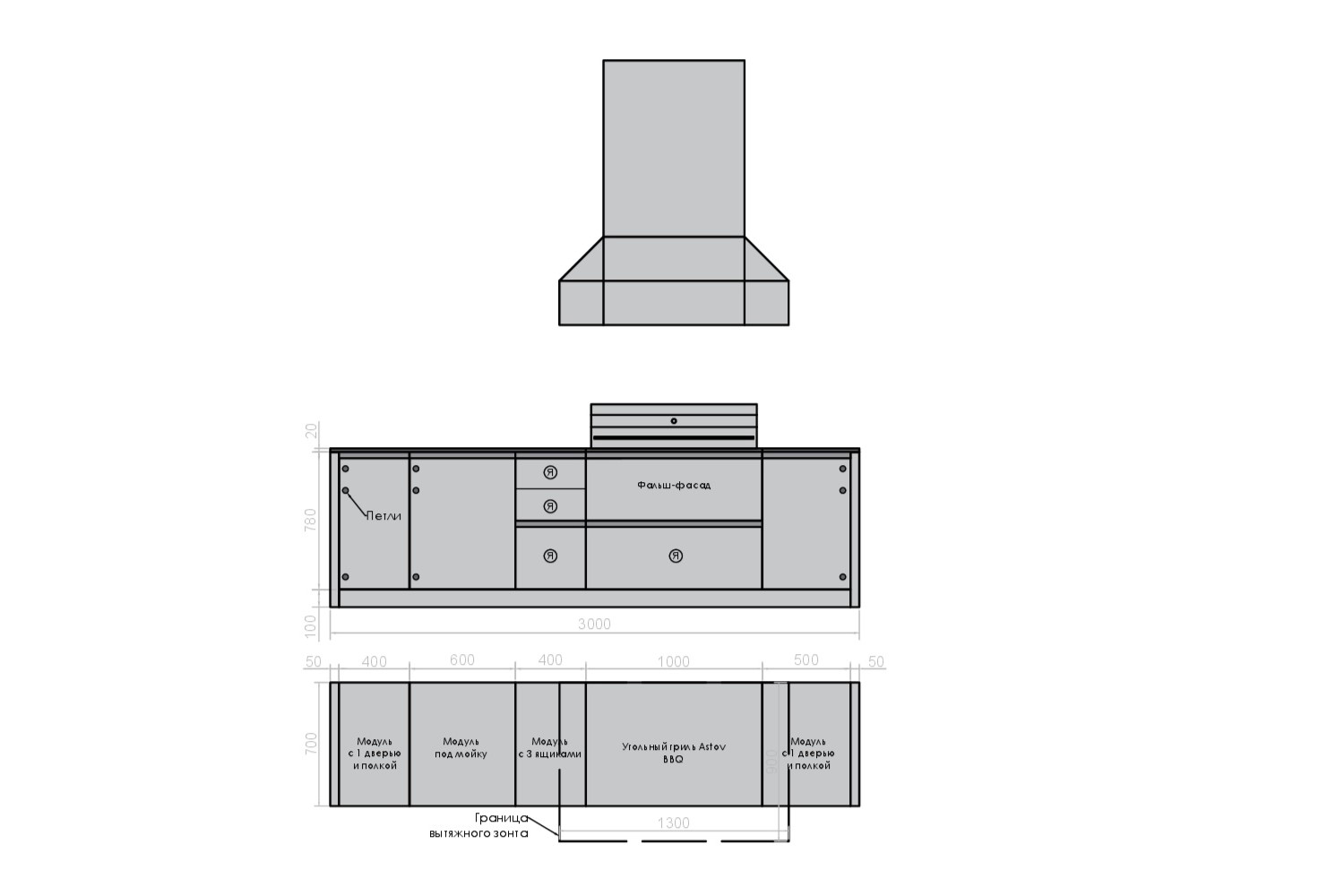
- Боковая пилястра 50 мм
- Модуль для хранения с 1 дверью и полкой (левый) 400 мм
- Модуль под мойку (левая) 600 мм
- Модуль для хранения с 3 ящиками 400 мм
- Угольный гриль ASTOV BBQ / АСТОВ БАРБЕКЮ (Мангал) 1000 мм
- Модуль для хранения с 1 дверью и полкой (правый) 500 мм
- Боковая пилястра 50 мм
- Вытяжной зонт ш. 1300 мм, в. 1500 мм
Достоинства
- Все оборудование для готовки собственного производства
- Качественная немецкая фурнитура
- Качественная сталь с порошковым покрытием и возможностью выбрать цвет по RAL / РАЛ (цветовой стандарт)

на этот товар
Кухня ASTOV BBQ / АСТОВ БАРБЕКЮ № 1
Цена: 805 600 руб.
- Производитель Astov
- Материал Оцинкованная сталь
- Ширина 300 см

- +7-906-663-0303


